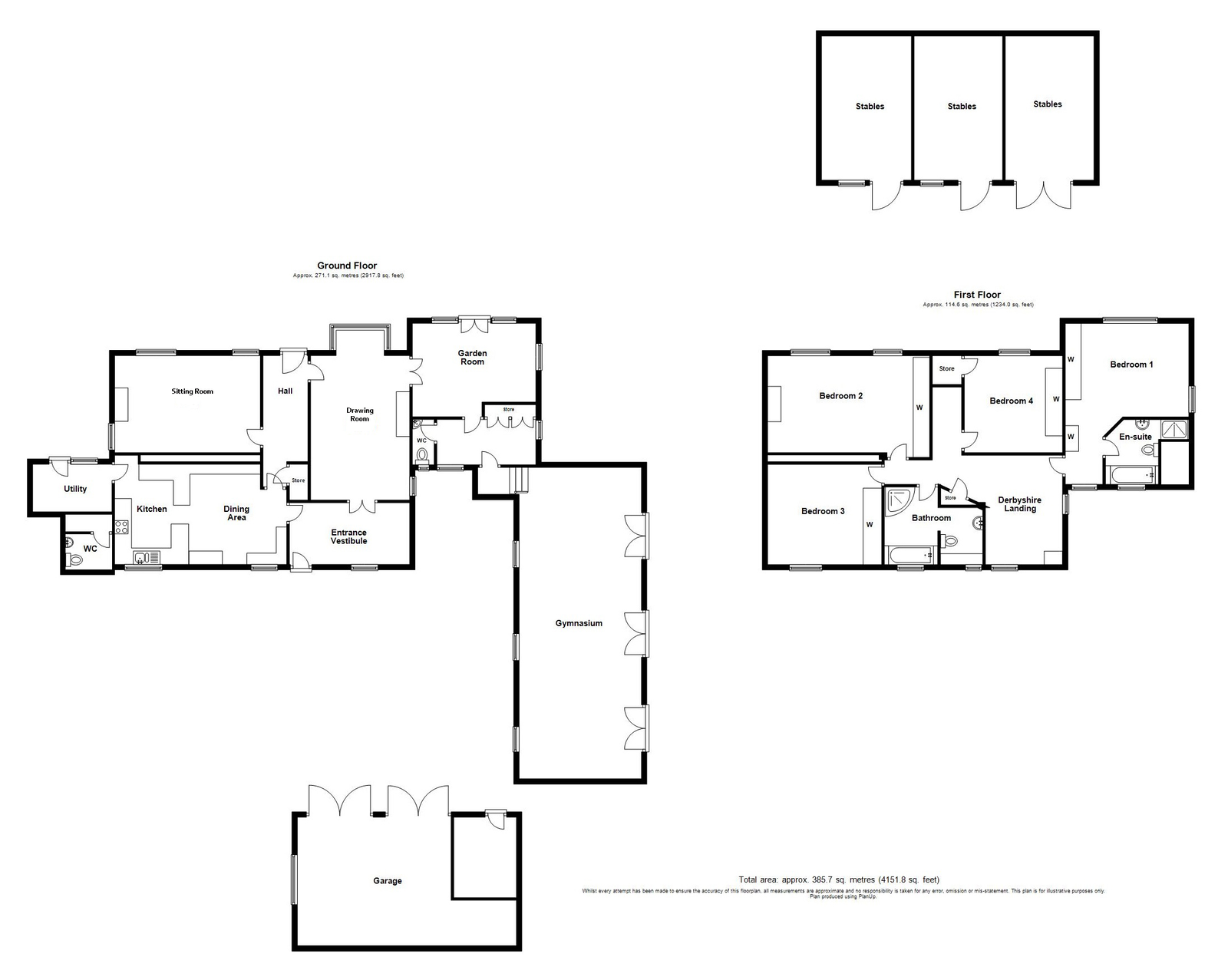
A splendid period property, ideally located close to the town centre, set in superb walled gardens extending to 0.6 acres. This immaculately maintained and beautifully presented cottage, dating back to the 1850s, has generous accommodation offering: four double bedrooms, master en-suite, family bathroom, sitting room, drawing room, garden room, delightfully spacious dining kitchen with utility room off, and a large gym/leisure suite ideal for a variety of uses. There is detached double garaging with a workshop, and a brick-built stable block.
Bakewell is an attractive market town nestling in the hills of the Peak District National Park. Famous for Bakewell Pudding and its weekly livestock market, the town is surrounded by beautiful open countryside and offers excellent local amenities. The area attracts many visitors throughout the year and is home to Chatsworth House and Haddon Hall, as well as the highly regarded Lady Manners School. Bakewell is ideally situated for the spa towns of Matlock (8 miles) and Buxton (11 miles) and is within commuting distance of Sheffield, Manchester, Nottingham, and Derby.
Entering the property via a panelled entrance door, with centre leaded pane, which opens to:
RECEPTION HALLWAY 4.48m x 2.32m
Having double-glazed windows overlooking the courtyard driveway, the room has decorative dentil cornice to the ceiling, fitted dado rail, and a central heating radiator with radiator cover. A pair of double panelled doors open to:
DRAWING ROOM 6.53m x 3.73m (measured into the bay)
Having a double-glazed square bay window with fitted window seat overlooking the beautiful, enclosed gardens. The room has dentil cornice and a corbelled beam to the ceiling, and a further side-aspect window flooding the room with natural light. There is a feature fireplace with a decorative marble surround and hearth housing an open grate. The room is illuminated by wall lamp points, and there is a television aerial point and a central heating radiator with thermostatic valve. A panelled door opens to the INNER HALLWAY, and a further pair of panelled doors open to:
GARDEN ROOM 5.28m x 3.48m
Having decorative painted panelling to the walls topped with a delft rack. There is egg and dart cornice to the ceiling with a decorative frieze. The room has dual-aspect double-glazed windows and a pair of half-glazed doors enjoying views over the delightful enclosed gardens. The room has wall lamp points, central heating radiator with radiator cover, and a telephone point. A panelled door opens to:
INNER LOBBY 3.62m x 1.69m
Having dual-aspect double-glazed windows overlooking the gardens and the courtyard driveway. There are useful deep built-in storage cupboards, elegant cornice to the ceiling, central heating radiator with thermostatic valve, and a panelled door leading to:
GROUND-FLOOR WC 1.71m x 0.88m
Having a window with obscured glass, suite with: close-coupled WC, and corner-mounted wash hand basin.
From the INNER LOBBY, a glazed door with bevelled glass panels opens to:
LEISURE SUITE 11.71m x 4.45m
A delightfully spacious room with a high ceiling, having front-aspect windows overlooking the driveway, and three pairs of glazed doors opening onto a south-facing flagged terrace and the gardens. The room has light oak flooring with electric under-floor heating, air conditioning, floor-to-ceiling mirrors to one wall, and a television aerial point. The room is illuminated by downlight spotlights and wall lamp points. The gym equipment is available by separate negotiation.
From the RECEPTION HALLWAY, a panelled door leads to:
DINING KITCHEN 6.42m x 3.91m
Having double-glazed windows overlooking the courtyard driveway, the window to the dining area having a fitted window seat. There are exposed beams to the ceiling, and the dining area has a feature fireplace in dressed stone with a raised hearth housing an open grate. The kitchen area of the room is fitted with a good range of units in a hand-painted finish, with cupboards and drawers beneath a timber-edged worksurface with a tiled splashback, and wall-mounted storage cupboards with under-cabinet lighting. Set within the worksurface is a one-and-a-half bowl sink with mixer tap, and a four-ring ceramic hob, over which is an extractor canopy vented to the outside. The worksurface returns to form a peninsula room divide. There is an eye-level Hotpoint double oven and grill, a Zanussi under-counter fridge, and Neff twelve-place-setting dishwasher. The dining area of the room is illuminated by wall lamp points, and there is an arched display niche with fitted shelving, and a central heating radiator with radiator cover. From the kitchen, a panelled door opens to:
UTILITY ROOM 2.96m x 1.73m
Having a half-glazed entrance door opening onto a flagged terrace, and a rear-aspect window overlooking the garden. Sited within the room is the Ideal Mexico boiler, which provides hot water and central heating to the property. There are wall-mounted and floor-standing storage cupboards, and a tall cupboard offering space and connection for an automatic washing machine and tumble dryer. The room has open-display shelves, and a central heating radiator with thermostatic valve. A panelled door opens to:
SECOND GROUND-FLOOR WC 1.56m x 1.33m
Having a close-coupled WC, wall-hung wash hand basin, central heating radiator with thermostatic valve, and extractor fan.
From the dining area of the KITCHEN, a panelled door leads to:
INNER HALLWAY 4.73m x 1.66m
Having a staircase rising to the upper-floor accommodation, a half-glazed entrance door opening onto the gardens, a central heating radiator with thermostatic valve, and a built-in cloakroom. A panelled door opens to:
SITTING ROOM 5.09m x 3.62m
Having dual-aspect double-glazed windows overlooking the gardens. The room is panelled to three-quarter height, with oak panelling topped with a delft rack, above which is a decorative frieze in a classical style, with a decorative cornice over. The room has a feature fireplace with an oak surround and an arched brick opening, housing an open grate. There is an exposed beam to the ceiling and there are built-in oak open display shelves. The room has a television aerial point, wall lamp points, and a central heating radiator with radiator cover.
From the INNER HALLWAY, a staircase with polished oak handrail rises to a half-landing where steps rise to:
FIRST-FLOOR LANDING 6.80m x 0.93m and 4.02m x 2.99m
A pleasantly spacious landing with double-glazed windows overlooking the courtyard driveway, and a further side-aspect window flooding the landing with natural light. There is elegant cornice to the ceiling, and an original feature fire opening, housing an early-period grate. There is a central heating radiator with thermostatic valve, and a concealed cupboard having slatted linen storage shelving and housing the hot water cylinder. The landing has ample space to create a study area, library etc. From the landing, a panelled door opens to:
MASTER BEDROOM LOBBY AREA 1.72m x 1.34m
Having a double-glazed lantern window, and an opening leading to:
MASTER BEDROOM 4.37m x 4.27m
Having double-glazed windows overlooking the wonderful gardens, and a further side-aspect window flooding the room with natural light. The room has elegant cornice to the ceiling, and a good range of built-in wardrobes providing hanging space and storage shelving. There are wall lamp points, and a central heating radiator with thermostatic valve. From the LOBBY AREA, a panelled door opens to:
ENSUITE BATHROOM 3.16m x 2.34m (measured into the shower cubicle)
The room has an oriel window with obscured glass, suite with: panelled bath; pedestal wash hand basin with mirror over and shaver point; and close-coupled WC. The room has a ladder-style towel radiator.
From the FIRST FLOOR LANDING, further panelled doors open to:
BEDROOM TWO 5.80m x 3.74 (measured into the wardrobes)
Having double-glazed windows overlooking the gardens, a decorative corbelled beam to the ceiling, and a good range of built-in wardrobes providing hanging space and storage shelving. There is a central heating radiator with thermostatic valve and wall lamp points.
BEDROOM THREE 4.28m x 3.95m
With a double-glazed window overlooking the courtyard driveway and the town, the room has a good range of built-in wardrobes and open-display shelves. There is a central heating radiator with thermostatic valve, and a further built-in storage cupboard with fitted shelving.
FAMILY BATHROOM 3.68m x 2.96m
Having double-glazed windows with obscured glass, tiling to dado height, and suite with: inset bath; pedestal wash hand basin with mirror over; close-coupled WC; and shower cubicle with mixer shower. The room has wall lamp points, a shaver point, a ladder-style radiator, and a central heating radiator with thermostatic valve.
From the half-landing, steps rise to:
BEDROOM FOUR 3.83m x 3.56m
With double-glazed windows overlooking the gardens and the wooded hills that surround the town. There are a good range of built-in wardrobes providing hanging space, storage shelving, storage drawers. The room has a central heating radiator with thermostatic valve, and a deep built-in storage cupboard with slatted shelving and a light.
OUTSIDE
The property is approached by a pair of electrically-operated gates which open to a flagged courtyard parking area, providing ample turning space, and parking for several vehicles. There are borders stocked with a good variety of mature ornamental shrubs and trees.
Accessed from the courtyard is the detached stone-built GARAGE with two sets of traditionally-hung double vehicular access doors, opening to a GARAGING SPACE 5.63m x 5.57m + WORKSHOP AREA 2.43m x 2.37m. The garage has a side-aspect window, power, and lighting. An external batten door with thumb latch opens to:
WORK/STOREROOM 3.10m x 2.33m
With slatted racking, power and lighting, and a borrowed-light window to the garage.
From the courtyard, an arched gate set within a wall with a decorative stone surround, opens to the gardens to the side of the property. The gardens enjoy a raised flagged terrace, taking advantage of the southerly-aspect where the doors open from the gym, beyond which is an area of lawn and borders well-stocked with a good variety of mature ornamental shrubs and trees. The garden continues, with an orchard area with a large central lawn interspersed with fruit trees. A flagged pathway leads through a tufa stone arch to a delightful area of enclosed garden lying to the front of the property, with a large lawn with sculpted borders, well-stocked with a good variety of ornamental shrubs. A flagged pathway meanders through the garden through a second tufa stone arch, creating a display feature. The garden is totally enclosed by a high stone wall surrounded by mature trees, creating a delightfully private space. To the side of the property is a further flagged terrace, with door opening to the utility room, a gate leading to the courtyard driveway, and a further gate leading to Coombs Road.
Beyond the orchard, accessed via a personnel gate, is an enclosed area of kitchen garden, to the end of which is a brick-built stable building incorporating STABLE ONE 4.31m x 3.26 with a broad entrance door and a salt glazed trough, STABLE TWO 4.29m x 2.55m + STABLE THREE 4.30m x 4.23m with a pair of traditionally-hung ledged and braced access doors.
The property has outside lighting with lanterns and floodlights, centrally operated from the house.
SERVICES AND GENERAL INFORMATION
All mains services are connected to the property.
For Broadband speed, please go to checker.ofcom.org.uk/en-gb/broadband-coverage
For Mobile Phone coverage, please go to checker.ofcom.org.uk/en-gb/mobile-coverage
TENURE Freehold
COUNCIL TAX BAND (Correct at time of publication) 'G'
DIRECTIONS
Leaving the centre of Bakewell along Bridge Street towards the A619: after going over Bakewell Bridge, turn right onto Station Road and turn immediately right again onto Coombs Road, where the property can be found on the right-hand side (the first property after the car park).
ANTI-MONEY LAUNDERING
We are required by law to conduct anti-money laundering checks on all those selling or buying a property. Whilst we retain responsibility for ensuring checks and any ongoing monitoring are carried out correctly, the initial checks are carried out on our behalf by Lifetime Legal who will contact you once you have agreed to instruct us in your sale or had an offer accepted on a property you wish to buy. The cost of these checks is £48 (incl. VAT), which covers the cost of obtaining relevant data and any manual checks and monitoring which might be required. This fee will need to be paid by you in advance of us publishing your property (in the case of a vendor) or issuing a memorandum of sale (in the case of a buyer), directly to Lifetime Legal, and is non-refundable.
Disclaimer
All measurements in these details are approximate. None of the fixed appliances or services have been tested and no warranty can be given to their condition. The deeds have not been inspected by the writers of these details. These particulars are produced in good faith with the approval of the vendor but they should not be relied upon as statements or representations of fact and they do not constitute any part of an offer or contract.