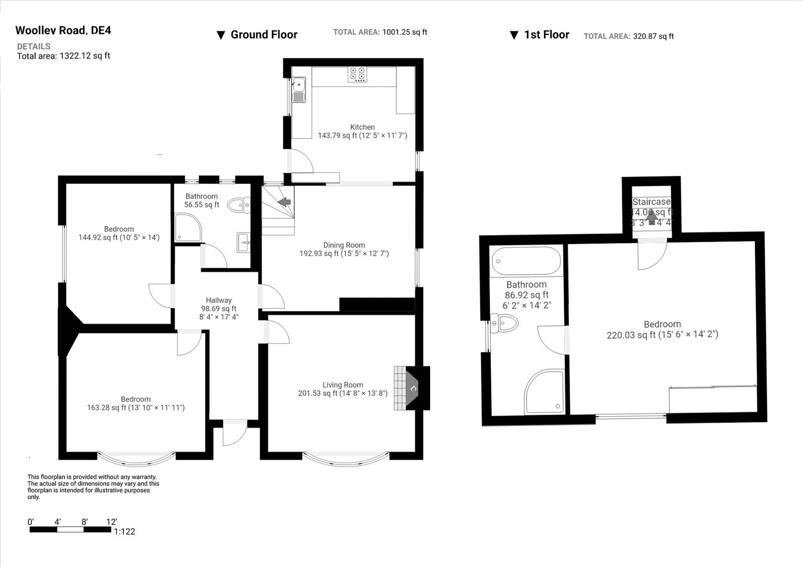
A spacious detached dormer bungalow situated just off the town centre, on a quiet cul-de-sac with delightful views. 3 double bedrooms, one on the first floor with en-suite bathroom, sitting room with log burning stove, recently fitted dining kitchen, ground floor shower room. Off road parking and good sized gardens with a southerly aspect.
WOOLLEY ROAD, Matlock
A spacious detached dormer bungalow, ideally located on a quiet cul-de-sac within easy reach of the town centre. Having the benefit of off-road parking and generous gardens, the property sits in an elevated position, with delightful views over the town to the open countryside beyond. The accommodation offers three bedrooms, one of which would make an ideal dining room, the main bedroom being on the first floor with an en-suite bathroom; a good-sized bay windowed sitting room; spacious dining kitchen with recently fitted units; ground floor shower room.
Matlock is a picturesque spa town in the heart of Derbyshire close to the Peak District National Park, surrounded by beautiful open countryside. The town has a wealth of historic buildings as well as excellent local amenities and good primary and secondary schools. At the centre of the town is Hall Leys Park with sports facilities, children’s play area, formal gardens, and a riverside walk. Situated on the A6 trunk road, there is easy access to Manchester, Derby, and Nottingham, and the nearby towns of Chesterfield (9 miles), Wirksworth (4.5 miles), and Bakewell (8 miles). There is a branch line train station with a regular service to Derby and Nottingham.
Entering the property via a UPVC double-glazed entrance door with sidelight panel, which opens to:
ENTRANCE PORCH
Having quarry tiles to the floor, coat hanging space, and an original entrance door leading to:
RECEPTION HALLWAY
Having quarry tiles to the floor, central heating radiator, and a telephone point. From the central hallway, original panelled doors open to:
SITTING ROOM
Having a front-aspect UPVC double-glazed bay window, enjoying far-reaching views over the town, taking in Riber Castle, Masson, and Bonsall Moor in the west. The room has light wood-effect laminate flooring, central heating radiator with thermostatic valve, an original fitted picture rail, and television aerial point with satellite facility. There is a feature fireplace with a dressed stone surround and a raised hearth, housing a log-burning stove.
DINING KITCHEN
A good-sized room, the dining space having dual-aspect UPVC double-glazed windows, the rear windows overlooking the garden. There is light wood-effect laminate flooring, central heating radiator with thermostatic valve, built-in storage cupboards, and a staircase rising to the upper-floor accommodation.
A broad opening leads to the kitchen area, which has a good range of recently fitted units in a paint-effect finish, with cupboards and drawers set beneath a timber-effect worksurface with a matching upstand. There are wall-mounted storage cupboards with under-cabinet lighting. Set within the worksurface is a one-and-a-half-bowl sink with mixer tap, set beneath a window, which overlooks the enclosed rear garden. A breakfast bar creates a peninsular room divide. Fitted within the worksurface is a four-ring ceramic hob, over which is an extractor canopy. Beneath the hob is a fan-assisted double oven and grill. Beneath the worksurface, there is space and connection for an automatic washing machine. The kitchen area has a further side-aspect window and a half-glazed entrance door opening onto the rear of the property. A pair of doors open to a deep walk-in storage cupboard, having a double-glazed window with obscured glass, and housing the Ideal Logic gas-fired boiler, which provides hot water and central heating to the property.
From the reception hallway, further original panelled doors open to:
BEDROOM TWO / DINING ROOM
Having a front-aspect UPVC double-glazed window with similar views to the sitting room. The room has light wood-effect laminate flooring and a central heating radiator with thermostatic valve.
BEDROOM THREE
Having a side-aspect double-glazed picture window flooding the room with natural light. The room has light wood-effect laminate flooring, a central heating radiator with thermostatic valve, and an original fitted picture rail.
FAMILY SHOWER ROOM
With rear-aspect double-glazed windows with obscured glass. The room is fully tiled with a ceramic tile floor and has a suite with: quadrant shower cubicle with a mixer shower; pedestal wash hand basin; and dual-flush close-coupled WC. The room has a dual-fuel chrome-finished ladder-style towel radiator, downlight spotlights, and an extractor fan.
From the dining kitchen, a quarter-turn staircase rises to:
BEDROOM ONE
Built into the shape of the roof, with a rear-aspect Velux rooflight window and front-aspect dormer window, taking advantage of the superb far-reaching views. There are access doors into the eaves of the roof space, providing ample storage. The room has a central heating radiator with thermostatic valve, and a panelled door opening to:
EN-SUITE BATHROOM
Being partially tiled with a ceramic tile floor, and having a side-aspect Velux rooflight window. Suite with: panelled bath with mixer taps and handheld shower spray; pedestal wash hand basin; dual-flush close-coupled WC; and a tiled shower cubicle with a mixer shower. The room has a dual-fuel chrome-finished ladder-style towel radiator, and an extractor fan.
OUTSIDE
The property sits at the head of a quiet cul-de-sac, with a block-paved parking area, beyond which is a small orchard with apple trees. The car parking space could easily be extended to take two vehicles. A stepped flagged pathway rises to a flagged terrace across the front of the property, taking advantage of the southerly aspect, and giving access to the entrance door. Beyond the terrace is garden with a lawn, and border stocked with ornamental shrubs.
A pathway run down the side of the property to a delightfully spacious enclosed rear garden, having a rockery border, and with steps rising to a flagged terrace with an aluminium greenhouse. Beyond the terrace is a good-sized area of garden, interspersed with mature ornamental shrubs. To the top of the garden is a timber garden shed. There is an ornamental garden pond. The property has outside lighting and an outside water supply.
SERVICES AND GENERAL INFORMATION
All mains services are connected to the property.
For Broadband speed, please go to checker.ofcom.org.uk/en-gb/broadband-coverage
For Mobile Phone coverage, please go to checker.ofcom.org.uk/en-gb/mobile-coverage
TENURE Freehold
COUNCIL TAX BAND (Correct at time of publication) ‘D’
DIRECTIONS
Leaving Matlock Crown Square via Bank Road, take the first left turn into Imperial Road which becomes Woolley Road. Shortly after passing the left turn into All Saints, on the right is a double driveway, the upper drive leads to the property.
ANTI-MONEY LAUNDERING
We are required by law to conduct anti-money laundering checks on all those selling or buying a property. Whilst we retain responsibility for ensuring checks and any ongoing monitoring are carried out correctly, the initial checks are carried out on our behalf by Lifetime Legal who will contact you once you have agreed to instruct us in your sale or had an offer accepted on a property you wish to buy. The cost of these checks is £45 (incl. VAT), which covers the cost of obtaining relevant data and any manual checks and monitoring which might be required. This fee will need to be paid by you in advance of us publishing your property (in the case of a vendor) or issuing a memorandum of sale (in the case of a buyer), directly to Lifetime Legal, and is non-refundable.
Disclaimer
All measurements in these details are approximate. None of the fixed appliances or services have been tested and no warranty can be given to their condition. The deeds have not been inspected by the writers of these details. These particulars are produced in good faith with the approval of the vendor but they should not be relied upon as statements or representations of fact and they do not constitute any part of an offer or contract.