BRAEHEAD COTTAGE, Aston Lane, Oker
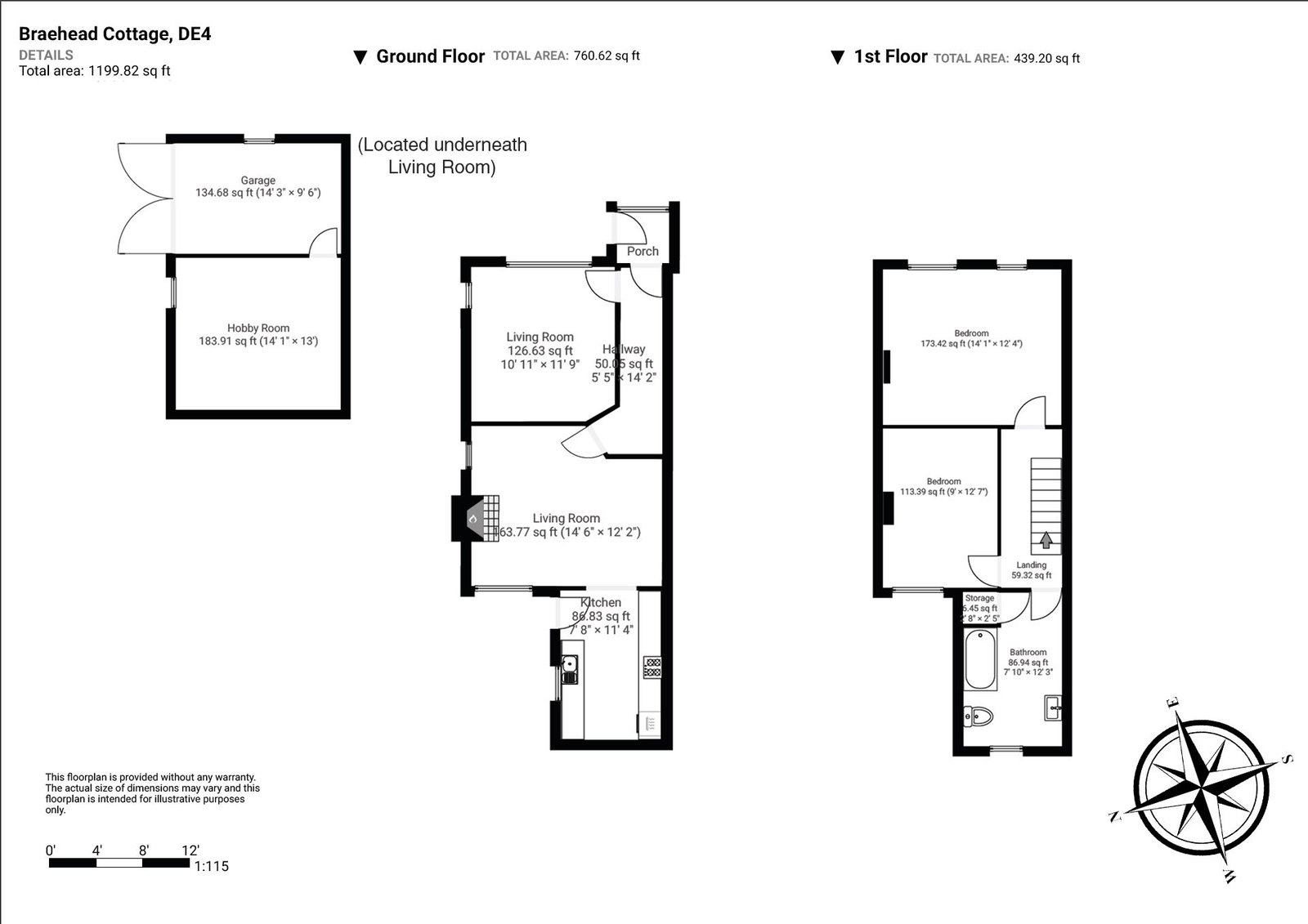
A superbly presented and recently refurbished semi-detached Victorian property, ideally located on the outskirts of the town, surrounded by delightful open countryside with NO UPWARD CHAIN. The furniture is available by separate negotiation. The immaculate accommodation offers: two bedrooms, family bathroom, spacious sitting room, dining room, and fitted kitchen. There is a lower ground floor hobby room ideal as a work from home space, garage with balcony terrace over and a delightful rear garden.
Oker is a secluded and picturesque hamlet nestled in the heart of the Derbyshire Dales, with sweeping views over the Derwent Valley. While the hamlet retains its quiet, agricultural character, it sits just moments from the vibrant amenities of Matlock, including excellent schools, boutiques, and leisure facilities. The area holds a unique literary distinction, having inspired William Wordsworth's celebrated poem "A Tradition of Oker Hill," written after he was captivated by a solitary, ancient oak tree standing prominently in the landscape. Oker is within commuting distance of Sheffield, Derby, and Nottingham, with the nearby town of Matlock (2 miles) offering a branch line train station for regular services to Derby and beyond, making it an ideal retreat for those seeking peace without sacrificing connectivity.
Entering the property via a half-glazed panelled entrance door – with decorative leaded stained glass lights – which opens to:
KITCHEN
Having a UPVC triple-glazed window, ceramic tiles to the floor, and a good range of units, with cupboards and drawers set beneath a solid timber worksurface with a tile splashback. There are wall-mounted storage cupboards with under-cabinet lighting, and a fitted wine rack. Set within the worksurface is a one-and-a-half-bowl porcelain sink with a mixer tap, and a four-ring induction hob, over which is an extractor canopy. Beneath the worksurface, there is space and connection for an automatic washing machine and slimline dishwasher. There is an integral fridge-freezer. Sited within the room is the oil fired boiler, which provides hot water and central heating to the property. The kitchen has a central heating radiator. A door opening leads to:
DINING ROOM
Having a front-aspect UPVC triple-glazed window, enjoying views over the wooded hills that surround the property. There is a further side-aspect window, flooding the room with natural light. The room has a feature fire-opening with a raised hearth housing a multi-fuel stove. To the side of the chimney breast are open-display shelves. The room has a fitted picture rail, central heating radiator with thermostatic valve, and television aerial point with satellite facility. A panelled door opens to:
RECEPTION HALLWAY
Having a staircase rising to the upper-floor accommodation, central heating radiator, and a half-glazed entrance door opening to:
REAR PORCH
Having a half-glazed panel door opening onto a balcony terrace, enjoying the superb far-reaching views afforded by the property.
From the reception hallway, a further door opens to:
SITTING ROOM
With rear-aspect double-glazed picture windows overlooking the gardens and taking advantage of the superb far-reaching view over the open countryside towards the town. There is a side-aspect triple-glazed lantern window, lending extra light to the room. The room has a raised hearth with a flame-effect electric fire. There are open-display shelves, fitted picture rail, and a central heating radiator. The room has a television aerial point with satellite facility.
From the hallway, a staircase rises to:
FIRST-FLOOR GALLERY LANDING
Having a loft-access hatch, and original panelled doors opening to:
BEDROOM ONE
Having rear-aspect UPVC triple-glazed windows taking advantage of the delightful views over the town towards Riber Castle. The room has fitted open-display shelving and a central heating radiator.
BEDROOM TWO
With a front-aspect triple-glazed window looking towards the wooded hills that surround the area. The room has a central heating radiator, and fitted open-display shelving.
FAMILY BATHROOM
With original exposed broad floorboards, front-aspect triple-glazed window, and suite with: panelled bath with mixer shower over, having monsoon-style rain head, handheld shower spray, and glass shower screen; vanity-style wash hand basin with tile splashback, having storage cupboards beneath and matching mirror-fronted cabinet over; and low-level flush WC. The room has a cast iron column-style radiator, wall-mounted supplementary electric heater, and an airing cupboard with slatted linen storage shelving.
OUTSIDE
To the front of the property is an enclosed forecourt, giving access to the entrance door. There is a coal storage bunker. To the side of the property, a driveway gives access to:
SINGLE GARAGE
An undercroft single garage, having power, lighting, and an access door opening to:
HOBBY ROOM
With a side-aspect window, central heating radiator with thermostatic valve, and wall-lamp points. This room would make an ideal work from home space.
To the rear of the property is an enclosed garden with a raised balcony terrace, taking advantage of the view. The garden is set in terraces, with borders stocked with ornamental shrubs and flowering plants. To the bottom of the garden is a gravelled seating area, creating a delightful sunny spot. Within the garden is a brick built store.
SERVICES AND GENERAL INFORMATION
Mains electricity, water, and drainage are connected to the property. Heating is by way of an oil-fired boiler. Broadband is provided by a wireless provider.
For Broadband speed, please go to checker.ofcom.org.uk/en-gb/broadband-coverage
For Mobile Phone coverage, please go to checker.ofcom.org.uk/en-gb/mobile-coverage
TENURE Freehold
COUNCIL TAX BAND (Correct at time of publication) ‘C'
DIRECTIONS
Leaving Matlock Crown Square along the A615 towards Bakewell. At the first roundabout turn left along the A6 sign posted Derby at the traffic lights turn right and immediately right again along Matlock Spa Road. Follow the road for 1.2 miles then turn right on to Aston Lane where the property can be found on the right hand side.
ANTI-MONEY LAUNDERING
We are required by law to conduct anti-money laundering checks on all those selling or buying a property. Whilst we retain responsibility for ensuring checks and any ongoing monitoring are carried out correctly, the initial checks are carried out on our behalf by Lifetime Legal who will contact you once you have agreed to instruct us in your sale or had an offer accepted on a property you wish to buy. The cost of these checks is £45 (incl. VAT), which covers the cost of obtaining relevant data and any manual checks and monitoring which might be required. This fee will need to be paid by you in advance of us publishing your property (in the case of a vendor) or issuing a memorandum of sale (in the case of a buyer), directly to Lifetime Legal, and is non-refundable.
Disclaimer
All measurements in these details are approximate. None of the fixed appliances or services have been tested and no warranty can be given to their condition. The deeds have not been inspected by the writers of these details. These particulars are produced in good faith with the approval of the vendor but they should not be relied upon as statements or representations of fact and they do not constitute any part of an offer or contract.