Set in 2 acres of paddock and garden surrounded by unspoilt open countryside this spacious detached farmhouse offers 4 double bedrooms, family bathroom, ground floor WC, generous breakfast kitchen, dining room, beamed sitting room with log burner and spacious drawing room with stove. Detached stone double garage and workshop, further stone outbuilding.
LODGE FARM, Uppertown
An exceptionally spacious, detached south-facing stone-built family home, parts of which date back to 1737, standing in gardens and paddocks of approximately two acres, surrounded by delightful open countryside with stunning far-reaching views. The accommodation offers: four bedrooms; family bathroom; spacious sitting room with original beam ceiling and a fine original fireplace; generous drawing room with a log-burning stove; breakfast kitchen; and dining room. The property has ample driveway parking, and a detached stone-built double garage and workshop, plus a further stone outbuilding ideal for storage.
Uppertown is a delightful hamlet in a peaceful rural setting surrounded by beautiful open countryside on the edge of the Peak District National Park. There are excellent amenities in the nearby village of Ashover including a post office, butchers, local shop, GP surgery, pubs, and a good primary school with an excellent reputation. Uppertown is located within easy reach of the towns of Chesterfield, Matlock, and Bakewell, and is within easy commuting distance of Sheffield, Nottingham, and Derby.
Entering the property via a pair of UPVC double-glazed entrance doors, which open to:
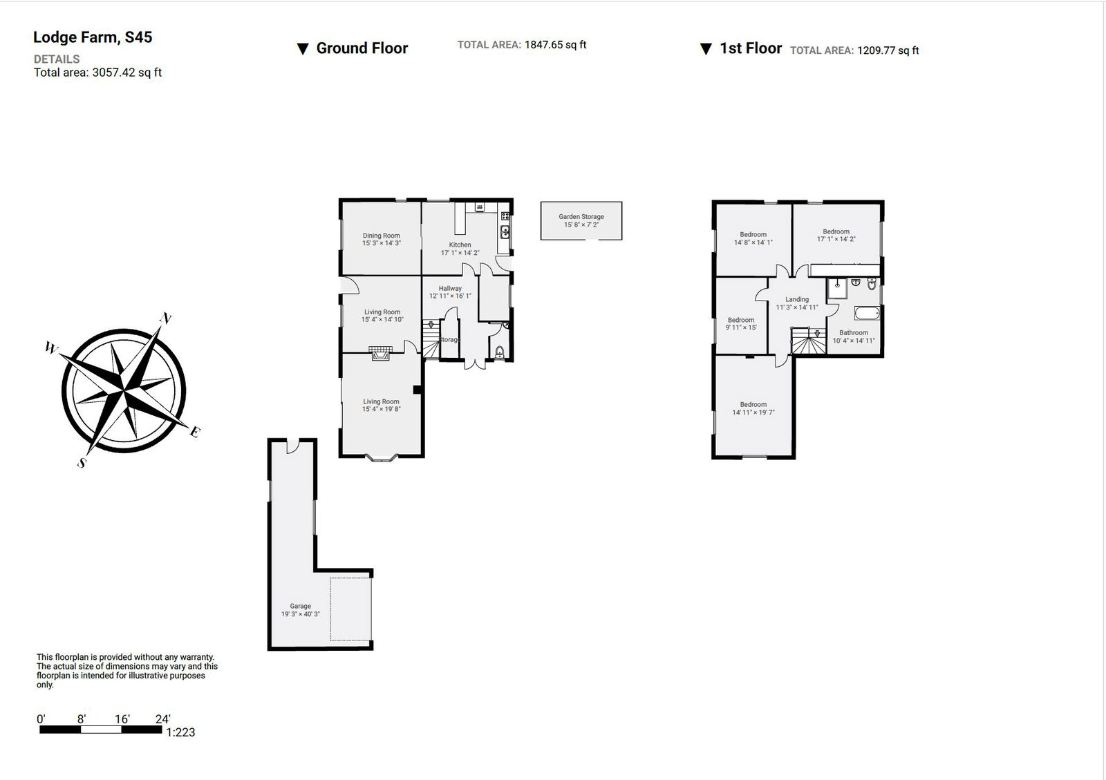
RECEPTION HALLWAY
Having polished oak flooring, central heating radiator, and a staircase rising to the upper floor accommodation, with a useful deep under-stairs storage cupboard with a light. A door opens to:
GROUND FLOOR WC
Having a front-aspect UPVC double-glazed window with obscured glass, light oak flooring following through from the hallway, a central heating radiator, and suite with: close-coupled WC and corner-mounted wash hand basin.
A 15-pane glazed door with a sidelight window opens to:
SITTING ROOM
Set in the older part of the property, this delightful room has original exposed beams to the ceiling with a heavy central beam with blacksmith-made hooks. There is polished oak flooring following through from the hallway, and a fine feature fire opening with a dressed stone surround and heavy corbelled lintel and raised hearth, housing a Clearview multi-fuel stove. There are wall-lamp points, and a display niche with fitted shelving. The room has a side-aspect UPVC double-glazed window overlooking the cottage garden and enjoying far-reaching views over the open countryside that surrounds the property. A hardwood door opens onto the patio terrace and the garden. A further oak door with ring latch leads to:
DRAWING ROOM
A delightfully spacious room with a front-aspect UPVC double-glazed bay window overlooking the driveway and sliding patio doors opening onto the flagged terrace and the cottage garden. The room has feature exposed stone walls, stone flags to the floor, and a pine-clad ceiling with inset lighting. There is a Clearview multi-fuel stove, and central heating radiators.
From the reception hallway, a door leads to:
BREAKFAST KITCHEN
A delightfully spacious room with dual-aspect UPVC double-glazed windows overlooking the gardens and paddock. A hardwood entrance door opens onto the side of the property. The kitchen is fitted with a good range of units in a light oak finish, with cupboards and drawers set beneath a worksurface with a tiled splashback. The worksurface returns to form a peninsular room divide. There are wall-mounted storage cupboards with under-cabinet lighting. Set within the worksurface is a twin-bowl sink with mixer tap, and a Bosch four-ring induction hob. Fitted in the kitchen is an eye-level Bosch double oven and grill. The breakfast area of the room has polished light oak flooring, and ample space for a family dining table. Fitted within the breakfast area is the coal-burning solid fuel boiler, which provides hot water and central heating to the property. There is a central heating radiator.
From the kitchen, a door opens to:
UTILITY ROOM
Having a side-aspect UPVC double-glazed window. The room is half-tiled and has a stainless sink unit set within a timber-effect worksurface with storage cupboards beneath. There is space and connection for an automatic washing machine and ample space for further white goods.
From the kitchen, a pair of 15-pane sliding doors with bevelled glass panels opening to:
DINING ROOM
With dual-aspect UPVC double-glazed windows overlooking the cottage garden and the wooded hills that surround the area. The room has a feature exposed stone wall, polished light oak flooring following through from the kitchen, an illuminated arched display niche, and an early original central beam. There are wall lamp points and a central heating radiator.
From the reception hallway, a staircase rises via a half-landing – where there is a front-aspect UPVC double-glazed window overlooking the driveway and the open fields beyond – to:
FIRST FLOOR LANDING
A good-sized first floor landing with a loft access hatch opening to a large, boarded loft space. From the landing, doors open to:
BEDROOM ONE
Having dual-aspect UPVC double-glazed windows overlooking the paddock and the fields beyond. The room has a good range of built-in wardrobes providing hanging space, storage shelving, and storage drawers. There is an airing cupboard housing the hot water cylinder, which is fitted with an immersion heater, and over which is slatted linen storage shelving.
BEDROOM TWO
Having dual-aspect UPVC double-glazed windows, the front window overlooking the garden and having a fitted window seat. The room has a feature exposed stone wall, central heating radiator, and delightful far-reaching views over the unspoiled countryside.
BEDROOM THREE
With a front-aspect UPVC double-glazed window taking advantage of the superb far-reaching view. There is a central heating radiator, and wall and centre light points.
BEDROOM FOUR
An exceptionally spacious room with dual-aspect windows overlooking the gardens and driveway to the open fields and countryside beyond. The room has a central heating radiator and a television aerial point.
FAMILY BATHROOM
A spacious room with side-aspect double-glazed windows with obscured glass. Suite with: panelled bath; pedestal wash hand basin; double-width shower cubicle with mixer shower; dual-flush close-coupled WC. The room has a central heating radiator.
OUTSIDE
The property is approached via a gated driveway with a turning circle, providing off-road parking and giving access to the garage. The centre of the turning circle has a mature copper beach tree and raised border, ideal for flowering plants. To the side of the driveway are two stone troughs, one of which is fed by a spring.
To the right-hand side of the driveway is an area of paddock enclosed by stone walls and mature trees, interspersed with fruit trees. Within the paddock is a stone-built OUTBUILDING, ideal for storage.
To the side of the property is an area of cottage garden enclosed by stone walls, and a flagged terrace where doors open from the drawing room. An original door opening with a date stone gives access to the sitting room.
Beyond the cottage garden and terrace is a further good-sized paddock with mature trees and an ornamental pond. Trees include apple trees, mature deciduous trees, including weeping willow, oak, and ash. To the bottom of the paddock is a small brook.
GARAGE
A detached stone-built double garage and workshop, having dual-aspect windows, up-and-over vehicular access door, power, and lighting.
SERVICES AND GENERAL INFORMATION
Mains electricity is connected to the property. Water is supplied by a private bore hole; drainage is by way of a private system. Heating and hot water are supplied by a coal boiler, multi fuel stoves and an immersion heater.
For Broadband speed, please go to checker.ofcom.org.uk/en-gb/broadband-coverage
For Mobile Phone coverage, please go to checker.ofcom.org.uk/en-gb/mobile-coverage
TENURE Freehold
COUNCIL TAX BAND (Correct at time of publication) ‘F’
DIRECTIONS
Leaving Matlock along the A632 towards Chesterfield: after passing the Kelstedge Inn, take the second left turn (sign-posted Darley Dale) into Alice Head Road. Take the second left turn into Cullumbell Lane (which becomes Hodge Lane). After passing Uppertown Social Centre, continue for approximately 400 metres, where the property can be found on the right-hand side.
ANTI-MONEY LAUNDERING
We are required by law to conduct anti-money laundering checks on all those selling or buying a property. Whilst we retain responsibility for ensuring checks and any ongoing monitoring are carried out correctly, the initial checks are carried out on our behalf by Lifetime Legal who will contact you once you have agreed to instruct us in your sale or had an offer accepted on a property you wish to buy. The cost of these checks is £45 (incl. VAT), which covers the cost of obtaining relevant data and any manual checks and monitoring which might be required. This fee will need to be paid by you in advance of us publishing your property (in the case of a vendor) or issuing a memorandum of sale (in the case of a buyer), directly to Lifetime Legal, and is non-refundable.
Disclaimer
All measurements in these details are approximate. None of the fixed appliances or services have been tested and no warranty can be given to their condition. The deeds have not been inspected by the writers of these details. These particulars are produced in good faith with the approval of the vendor but they should not be relied upon as statements or representations of fact and they do not constitute any part of an offer or contract.